彈簧微啟封閉式高壓安全閥
一、彈簧微啟封閉式高壓安全閥 概述
A41Y-160、320型彈簧微啟封閉式高壓安全閥適用于工作溫度≤200℃空氣、氮氫混合氣、水等介質的設備和管路上。A41Y-160P/320P、A41Y- 160R/320R型適用于工作溫度≤200℃有腐蝕性的氣體或液體介質的設備和管路上,作為超壓保護裝置。連接法蘭按JB/T2769-92的標準。
二、彈簧微啟封閉式高壓安全閥 結構簡述
1、彈簧微啟式安全閥具有結構簡單、密封性能好、開啟壓力準確、排放能力大、回座壓差小、調整方便等特點。
2、噴嘴型閥座:閥座為位伐爾噴嘴型閥座,蒸汽流經閥座出口處時達到音速,排放系數大,閥座密封面堆焊鈷鉻鎢硬質合金,耐磨抗沖蝕,壽命長。
3、熱彈性閥瓣:閥瓣設計為熱彈性結構,利用其在介質壓力下微小的變形,提高密封能力,克服安全閥在介質壓力下臨近整定壓力時的前泄現象。閥瓣密封面采用先進的激光淬火技術,提高了硬度、耐磨性、抗沖抗性。
4、調節螺母:通過調整調節螺母,調整彈簧壓縮量,使閥門能夠很方便、很迅速地獲得準確的整定壓力。
5、背壓調整套:調整閥瓣背壓的輔助機構,通過背壓調整套調整,可獲得合適的回座壓差。上調時,使閥門背壓降低。下調時,使閥門背壓提高。
 |
 |
彈簧微啟封閉式高壓安全閥 |
彈簧微啟封閉式高壓安全閥 |
三、彈簧微啟封閉式高壓安全閥 安裝說明
1、安全閥必須垂直安裝,并最好直接安裝在容器或管道的接頭上。接頭內徑應不小于安全閥的進口通徑。
2、安全閥的出口必須裝設適當的膨脹節,以防止排放管的熱膨脹給安全閥帶來不應有的熱應力。排放管內徑應比閥門出口直徑大,長度盡可能短,避免拐彎。排放管及膨脹節重量不應作用在安全閥上,應固定在建筑上。排放管的中心線與閥體的中心線間距離盡可能的短。對每臺安全閥都應單獨裝設排放管。
3、消聲器的出口處要有足夠的面積,防止產生背壓影響閥門的排放能力。
四、彈簧微啟封閉式高壓安全閥 主要零部件材料
NO |
零件名稱 |
A41Y-160材料 |
A41Y-160P材料 |
A41Y-160R材料 |
1 |
法蘭 |
35/35CrMoA |
2Cr13 |
1Cr18Ni9Ti |
2 |
閥座 |
2Cr13 |
1Cr18Ni9Ti |
1Cr18Ni12Mo2Ti |
3 |
閥體 |
35/40 |
1Cr18Ni9Ti |
1Cr18Ni12Mo2Ti |
4 |
閥瓣 |
2Cr13 |
1Cr18Ni9Ti |
1Cr18Ni12Mo2Ti |
5 |
導向套 |
2Cr13 |
1Cr18Ni9Ti |
1Cr18Ni12Mo2Ti |
6 |
彈簧 |
50CrVA |
50CrVA包覆氟塑料 |
50CrVA包覆氟塑料 |
7 |
閥桿 |
2Cr13 |
1Cr18Ni9Ti |
1Cr18Ni12Mo2Ti |
8 |
閥蓋 |
ZG230-450 |
1Cr18Ni9Ti |
1Cr18Ni9Ti |
9 |
調整螺桿 |
45 |
2Cr13 |
2Cr13 |
10 |
閥帽 |
ZG200-400 |
1Cr18Ni9Ti |
1Cr18Ni9Ti |
|
閥座、閥瓣密封面 |
堆焊Co基硬質合金 |
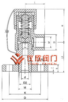
五、彈簧微啟封閉式高壓安全閥 外形尺寸和連接尺寸
 |
 |
彈簧微啟封閉式高壓安全閥結構圖 |
彈簧微啟封閉式高壓安全閥結構圖 |
型號 |
公稱
通徑 |
do |
d |
M |
D |
K |
Z-¢d |
b |
d1 |
M1 |
D1 |
K1 |
Z1-¢d1 |
b1 |
L |
L1 |
≈H |
A41Y-160
(單法蘭) |
15 |
8 |
20 |
M24×2 |
95 |
60 |
3-18 |
20 |
/ |
M33×2 |
36 |
/ |
/ |
/ |
50 |
80 |
85 |
20 |
10 |
25 |
M27×2 |
95 |
60 |
3-18 |
20 |
/ |
M33×2 |
48 |
/ |
/ |
/ |
50 |
80 |
85 |
25 |
12 |
28 |
M33×2 |
105 |
68 |
3-18 |
20 |
/ |
M33×2 |
48 |
/ |
/ |
/ |
50 |
80 |
85 |
A41Y-160 |
10 |
8 |
18 |
M24×2 |
95 |
60 |
3-18 |
20 |
29 |
M42×2 |
115 |
80 |
4-18 |
22 |
95 |
100 |
261 |
15 |
8 |
20 |
M24×2 |
95 |
60 |
3-18 |
20 |
29 |
M42×2 |
115 |
80 |
4-18 |
22 |
95 |
100 |
261 |
20 |
10 |
27 |
M33×2 |
105 |
68 |
3-18 |
20 |
29 |
M42×2 |
115 |
80 |
4-18 |
22 |
95 |
100 |
261 |
25 |
12 |
28 |
M33×2 |
105 |
68 |
3-18 |
20 |
50 |
M64×3 |
165 |
115 |
6-26 |
32 |
130 |
135 |
285 |
32 |
12.14.16 |
37 |
M42×2 |
115 |
80 |
4-18 |
22 |
50 |
M64×3 |
165 |
115 |
6-26 |
32 |
130 |
135 |
285 |
40 |
20 |
47 |
M52×2 |
165 |
115 |
6-26 |
28 |
65 |
M80×3 |
200 |
145 |
6-29 |
40 |
165 |
165 |
350 |
50 |
25 |
58 |
M64×3 |
165 |
115 |
6-26 |
32 |
80 |
M100×3 |
225 |
170 |
6-33 |
80 |
165 |
165 |
380 |
A41Y-320 |
10 |
8 |
18 |
M24×2 |
95 |
60 |
3-18 |
20 |
29 |
M42×2 |
115 |
80 |
4-18 |
22 |
95 |
100 |
261 |
15 |
8 |
27 |
M33×2 |
105 |
68 |
3-18 |
20 |
29 |
M42×2 |
115 |
80 |
4-18 |
22 |
95 |
100 |
261 |
20 |
10 |
30 |
M36×2 |
110 |
75 |
3-18 |
20 |
29 |
M42×2 |
115 |
80 |
4-18 |
22 |
95 |
100 |
261 |
25 |
12 |
35 |
M42×2 |
115 |
80 |
4-18 |
22 |
50 |
M64×3 |
165 |
115 |
6-26 |
32 |
130 |
135 |
285 |
32 |
12.14.16 |
41 |
M48×2 |
135 |
95 |
4-22 |
25 |
50 |
M64×3 |
165 |
115 |
6-26 |
32 |
130 |
135 |
285 |
40 |
20 |
58 |
M64×2 |
165 |
115 |
6-26 |
32 |
65 |
M80×3 |
200 |
145 |
6-29 |
40 |
165 |
115 |
350 |
50 |
25 |
70 |
M80×2 |
200 |
145 |
6-29 |
40 |
80 |
M100×3 |
225 |
170 |
6-33 |
50 |
165 |
165 |
380 |